Terrain à vendre Périgny
Terrain – Perigny (17180) – 208950€ Terrain constructible – 406m²…
208950€
17000 La Rochelle
À vendre
499900€












T3 – La Rochelle (17000) – 499900€
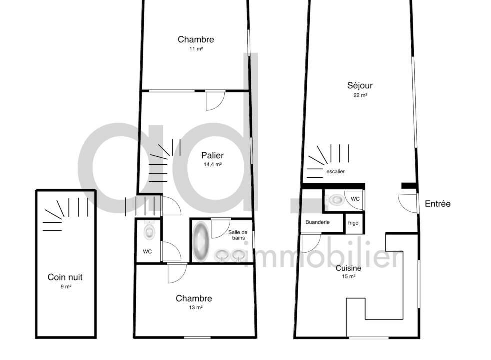
La Rochelle – Hyper-centre – à deux pas du marché – Maison T3/4 de 89m² habitable (et 99m² au sol) pleine de charme située à proximité de toutes les commodités et avec un extérieur intimiste.
Elle comprend un séjour, une salle à manger avec une cuisine ouverte au rez-de-chaussée une buanderie et un WC.
À l’étage, un grand palier avec un espace bureau, deux chambres dont une avec mezzanine et avec un accès sur une terrasse. Une salle de bains, un coin nuit sous comble pouvant servir de 3ème chambre et un WC indépendant.
Un local pouvant servir de stockage ou de local vélo.
Visite virtuelle sur demande!
Ce bien vous est présenté par Simon BREANT – SBPI IMMO – agent immobilier indépendant dont la carte T est CPI64022025000000002.
Classe énergie D, Classe climat D Montant moyen estimé des dépenses annuelles d’énergie pour un usage standard, établi à partir des prix de l’énergie de l’année 2021 : entre 1260.00 et 1760.00 €. Les informations sur les risques auxquels ce bien est exposé sont disponibles sur le site Géorisques : georisques.gouv.fr.
Votre conseiller AD IMMOBILIER : Agent immobilier indépendant – Simon Bréant
Carte T CPI64022025000000002
RCP GAN ASSURANCES
Diagnostic de Performance Energétique
DPE réalisé après le 01/07/2021
Consommation (énergie primaire) : 228 kWh/m².an
Émissions : 49 kgCO2/m2 .an
Estimation des coûts annuels en énergie pour un usage standard : entre 1260 et 1760 € par an.
Selon prix moyens des énergies indexés sur l’année 2021 (abonnement compris).
Terrain – Perigny (17180) – 208950€ Terrain constructible – 406m²…
208950€
Owning a home is a keystone of wealth… both financial affluence and emotional security.